Thông tin bồn cầu TOTO CS769DRT2
- Mã sản phẩm: CS769DRT2#XW
- Tên sản phẩm: Bồn cầu 2 khối TOTO
- Thiết kế : Thân dài
- Hệ thống xả : Tornado
- Men chống bám bẩn: CeFiONtect
- Loại xả: 2 nhấn 4.5/ 3.0 (L)
- Áp lực nước sử dụng: 0.05 ~ 0.70 (Mpa)
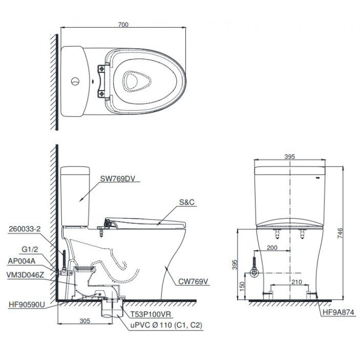
- Tâm xả: 305 (mm)
- Mặt nước đọng: 105 x 143 (mm)
- Đường kính đường thải : 63 (mm)
- Kích thước (DxRxC): 700 x 395 x 746 (mm)
- Xuất xứ: Việt Nam
- Bảo hành: 10 năm
Bồn cầu 2 khối TOTO CS 769DRT2 gồm có
- Thân cầu: C769
- Két nước: S769DR
- Nắp bồn cầu TC393VS
Tính năng bàn cầu TOTO CS769DRT2XW
- Nắp đóng êm
- Phù hợp lắp đặt với nắp rửa điện tử WASHLET (tùy chọn)
- Bề mặt nước rộng giúp ngăn mùi hiệu quả
- Bồn cầu thiết kế thân kín, vành kín tiện dụng cho việc vệ sinh hàng ngày
- Công nghệ CeFiONtect siêu ưu nước, hạn chế tối đa các vết bẩn, vi khuẩn
- Công nghệ xả thẳng Tornado êm, mạnh mẽ hiệu quả
Bản vẽ kích thước xí bệt TOTO CS769DT2






Reviews
There are no reviews yet.